Loading...
Schuifloketten Brandwerende loketten

MHSL

Horizontaal schuifloket, 30 minuten brandwerend

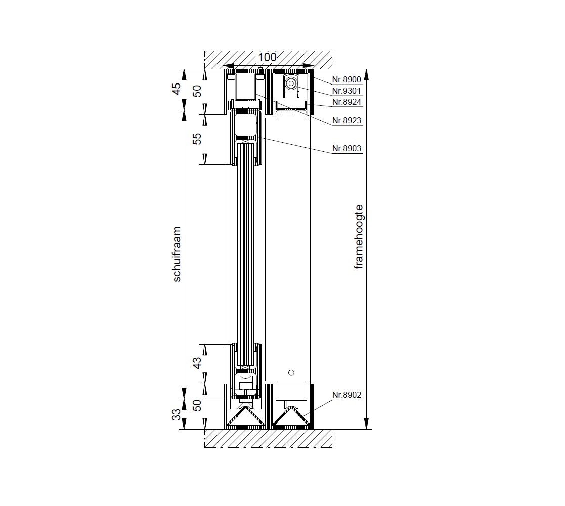
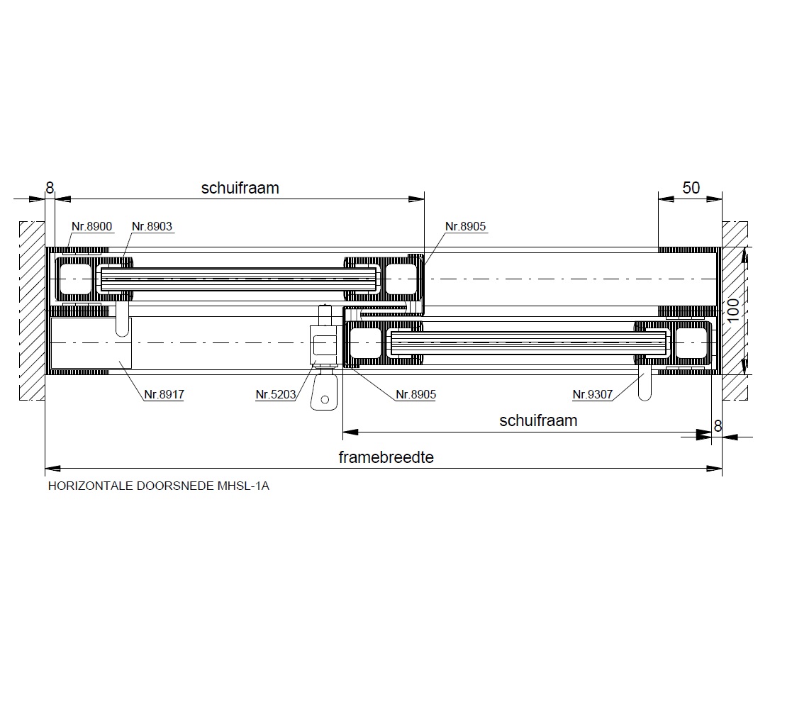
Voorzien van:

  • 30 minuten brandwerend glas
  • stalen buitenframe van profiel nr. 8900
  • stalen looprails nr. 8902
  • stalen raamframes van profiel nr. 8903, nr. 8905 nr. 8923 en nr. 8921
  • eindstop nr. 8917
  • gelagerde loopwielen nr. 8971
  • handgreep nr. 9307
  • slot nr. 5203
  • opschuimende componenten


Opties: Zelfsluitinrichting met smeltzekering
Zelfsluitinrichting met kleefmagneet
60 minuten brandwerend

Afbeeldingen zijn een voorbeeld van type MHSL-1A

Download voor alle informatie over dit product de technische documentatie, hierin vindt u onder andere: technische specificaties, samenstellingsoverzicht, tekeningen, aansluitdetails en onderdelen.

Heeft u na het inzien van de technische documentatie vragen en/of heeft u specifieke productwensen , neem dan contact op met Metaglas. Wij helpen u graag verder.