Loading...
Total Glas glazen puien en deuren Glazen schuifdeuren

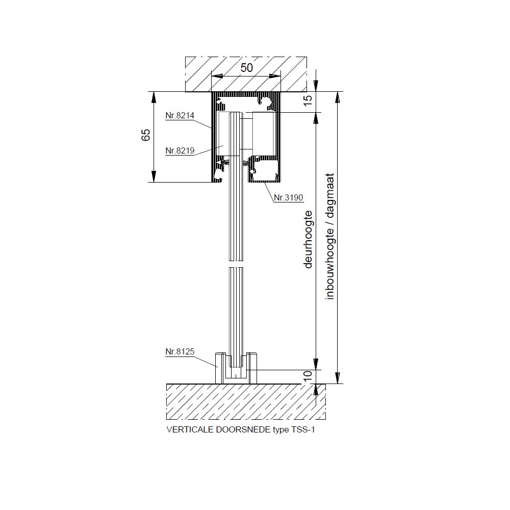
TSS

TOTAL GLAS hardglazen schuifdeur

Total Glas schuifpuien en deuren zijn er in verschillende uitvoeringen, onderstaande weergave is van type TSS-1.

  • 10 mm blank voorgespannen floatglas
  • kogelgelagerde looprollen
  • rvs handgrepen Ø 16 x 600 mm
  • naturel geanodiseerde looprail
  • met borstelafdichting
  • eindstop
  • rvs ondergeleiding
  • afdekkap
  • Maximaal deurgewicht: 150 kg*
  • Maximale deurbreedte: 1200 mm

*Zwaardere panelen zijn op aanvraag mogelijk. Let op de bedienbaarheid van de deur bij grote afmetingen.

Bekijk alle varianten en technische details in de documentatie.

Total Glas schuifdeuren zijn in verschillende modellen met verschillende schuifsystemen te leveren. Onderstaand overzicht zijn de standaard modellen van de Total Glas schuifdeuren. Zie de technische documentatie voor alle technische specificaties en mogelijkheden per schuifsysteem. Afwijkende formaten of schuifrichting zijn ook mogelijk, neem hiervoor contact op met onze technische adviseurs. 

Metaglas denkt graag met u mee. Heeft u vragen over de vele mogelijkheden van de Total Glas schuiframen en -deuren of wilt u advies over de mogelijkheden voor uw project? Neem dan contact met ons op. Wij helpen u graag verder.