Loading...
Total Glas glazen puien en deuren Glazen deur met Metinox Design beslag

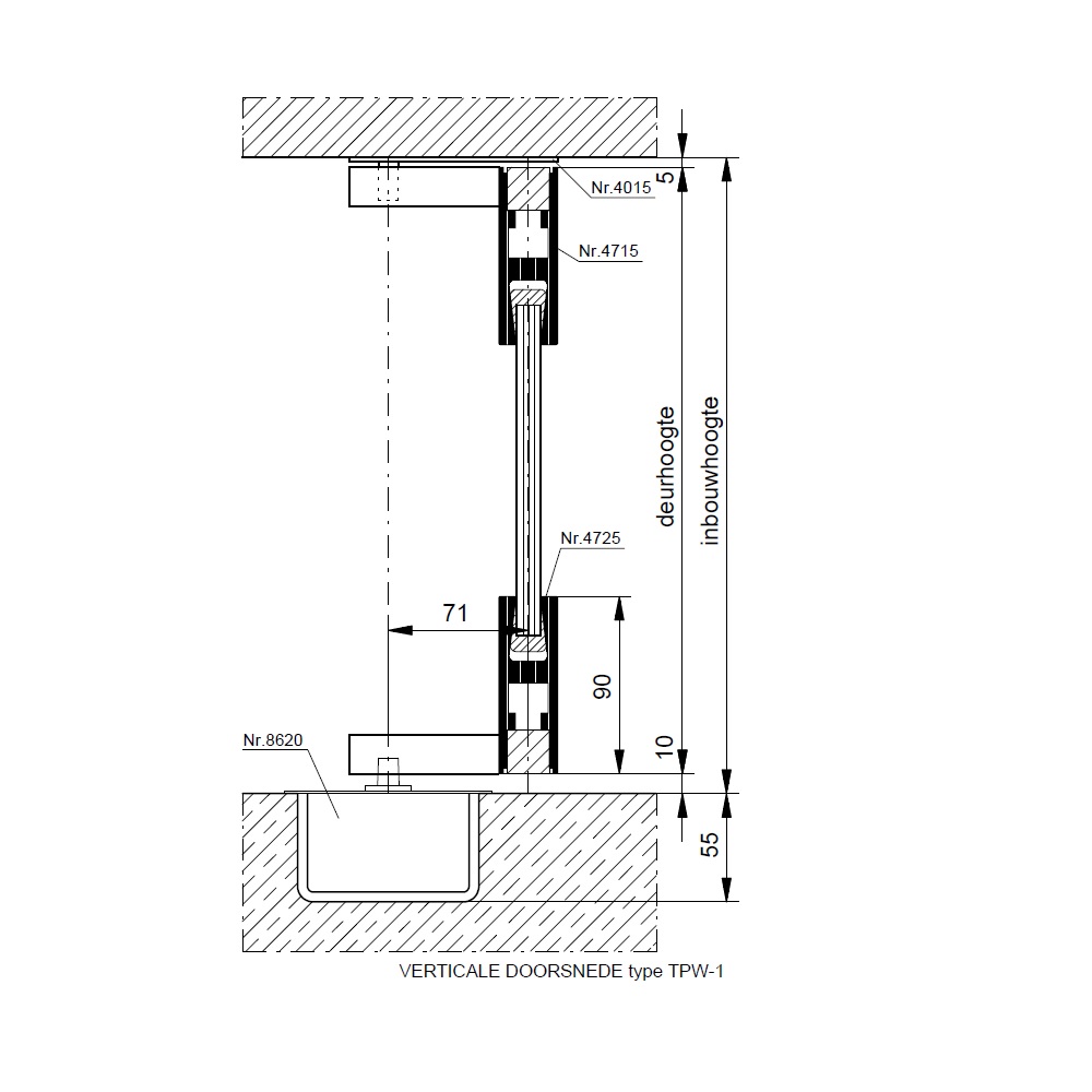
TPW

TOTAL GLAS hardglazen enkelwerkende deur met onder- en bovenprofiel

Voorzien van:

  • 10 mm blank voorgespannen floatglas
  • rvs bovenspeun vleugel nr. 4015
  • rvs bovenplint met vleugel nr. 4715
  • onderplint met vleugelspeun nr. 4725
  • rvs vloerveer nr. 8620 met 90° ruststand
  • rvs deurduwers ø 16 x 650 mm


Maximaal deurgewicht: 120 kg
Maximale deurbreedte: 1200 mm
Glasdikte: 10 mm en 12 mm

Afbeeldingen zijn een voorbeeld van type TPW-1