Loading...
Total Glas glazen puien en deuren Glazen deur met Metinox Design beslag

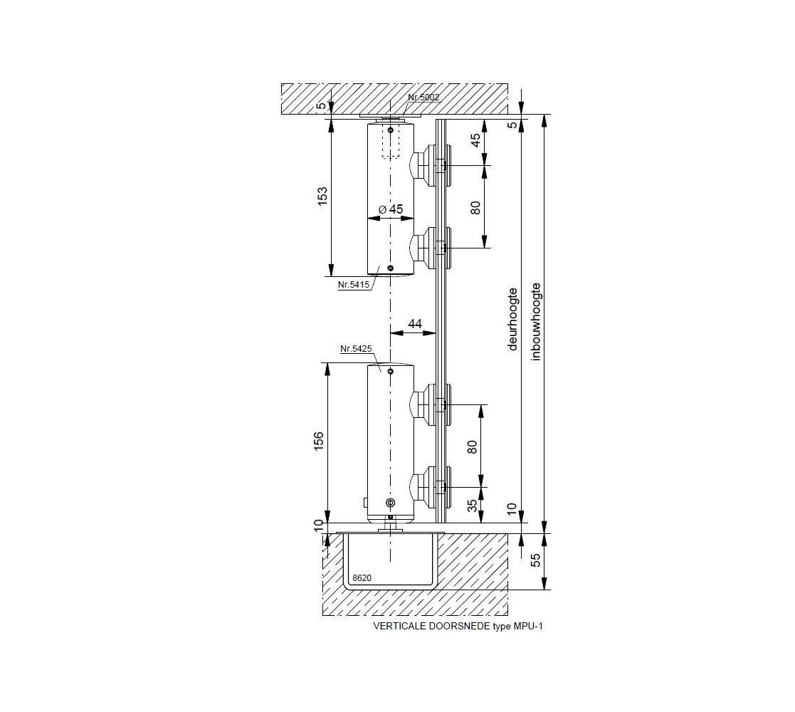
MPU

TOTAL GLAS hardglazen enkelwerkende deur met Metinox® Design beslag

Voorzien van:
- 10 mm blank voorgespannen floatglas
- rvs bovenspeun nr. 5002
- rvs bovendraaipunt nr. 5415
- rvs onderdraaipunt nr. 5425
- Metaglas rvs vloerveer nr. 8620 met 90° ruststand
- rvs deurduwers Ø 16 x 650 mm
- rvs eindstop nr. 5005


Maximaal deurgewicht: 80 kg
Maximale deurbreedte: 1000 mm
Glasdikte: 10 mm en 12 mm

MPU-1
Enkelwerkende deur met Metinox beslag
MPU-5
Enkelwerkende deur met 1 bovenlicht en Metinox beslag