Loading...
Total Glas glazen puien en deuren Glazen deur met Metinox Design beslag

MPS

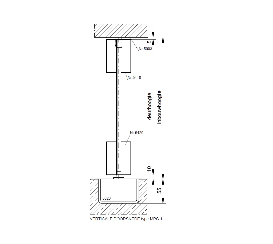
TOTAL GLAS hardglazen deur met Metinox® Design beslag

Voorzien van:
- 10 mm blank voorgespannen floatglas
- rvs bovenspeun nr. 5003
- rvs bovendraaipunt nr. 5410
- rvs onderdraaipunt nr. 5420
- Metaglas rvs vloerveer nr. 8620 met 90° ruststand
- rvs deurduwer Ø 16 x 650 mm


Maximaal deurgewicht: 150 kg
Maximale deurbreedte: 1200 mm
Glasdikte: 10 mm, 12 mm, 5(2)5 en 6(2)6

MPS-1
Doordraaiende deur met Metinox beslag
MPS-5
Doordraaiende deur met 1 bovenlicht en Metinox beslag
MPS-6
Doordraaiende deur met 1 bovenlicht, 1 zijpaneel en Metinox beslag