Loading...
Total Glas glazen puien en deuren Geluidsisolerende scheidingswanden

TGDS

TOTAL GLAS hardglazen geluidsisolerende wanden en deuren

Total Glas hardglazen geluidsisolerende wanden en deuren worden op projectbasis gemaakt en kunnen daarom volledig worden uitgevoerd naar de eisen en wensen van de ontwerper en opdrachtgever. Tot de standaard mogelijkheden behoren:

  • Volglazen geïsoleerde wanden;
  • Volglazen geïsoleerde wanden in combinatie met deuren;
  • Volglazen geïsoleerde wanden in combinatie met kasten en deuren.

Bekijk hieronder de technische details van de diverse varianten. Voor meer informatie over de mogelijkheden kunt u contact opnemen met onze adviseurs door te bellen naar 0344-750400. 

TGDS-V
Geluidsisolerende vaste wanden
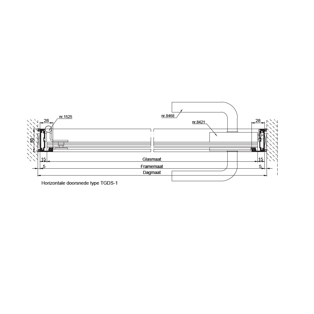
TGDS-1
Geluidsisolerende deur
TGDS-4
Geluidsisolerende wanden met deur

Metaglas denkt graag met u mee. Heeft u vragen over de vele mogelijkheden van de Total glas geluidsisolerende wanden en deuren of wilt u advies over de mogelijkheden voor uw project? Neem dan contact met ons op. Wij helpen u graag verder.