Loading...
SilentAir geluidsschermen SilentAir gevelschermen

SAG

SilentAir gevelscherm met 1, 2 of 3 cassettes

SilentAir gevelschermen zijn opgebouwd uit 1, 2 of 3 cassettes, afhankelijk van de desgewenste geluidreductie. Door de verschillende afmetingen van de cassettes kan de geluidsreductie oplopen tot wel 16dB.

Voorzien van:

  • Blank gehard glas, glasdikte maximaal 12 mm
  • Geluidsabsorberende cassette type A
  • rvs glasklem
  • rvs afstandhouder
  • optioneel met flap

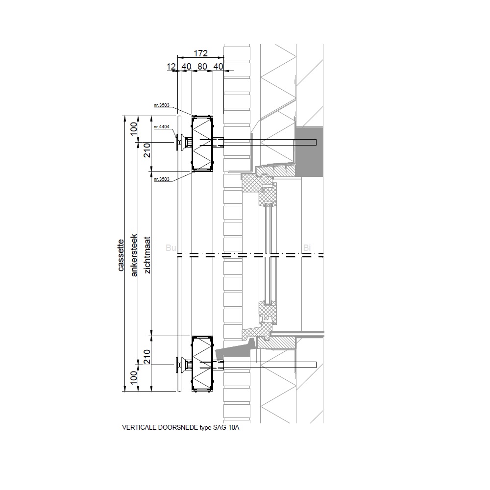
Afbeeldingen zijn een voorbeeld van type SAG-10A.

SAG-10A
1 cassette van 80*120 mm
SAG-10B
1 cassette van 160*210 mm
SAG-10C
1 cassette van 160*210 mm incl. λ-demper
SAG-10D
1 cassette van 160*310 mm
SAG-10E
1 cassette van 160*310 mm incl. λ-demper

Afhankelijk van de gewenste geluidsreductie kunnen de gevelschermen worden uitgebreid met 2 of 3 cassettes achter elkaar. Bij toepassing van meerdere cassettes verandert het typenummer van de SAG-10 naar SAG-20 (2 cassettes) of SAG-30 (3 cassettes), zie samenstellingsoverzicht en complete productenlijst in de technische documentatie. 

Download voor alle informatie de technische documentatie. Hierin vindt u onder andere: technische specificaties, technische detailtekeningen, samenstellingsoverzicht, montagemogelijkheden en maximale geluidsreductie.

Heeft u na het inzien van de technische documentatie vragen en/of heeft u specifieke productwensen, neem dan contact op met Metaglas. Wij helpen u graag verder.