Loading...
MetaPlus achterzetramen MetaPlus Comfort

VSV

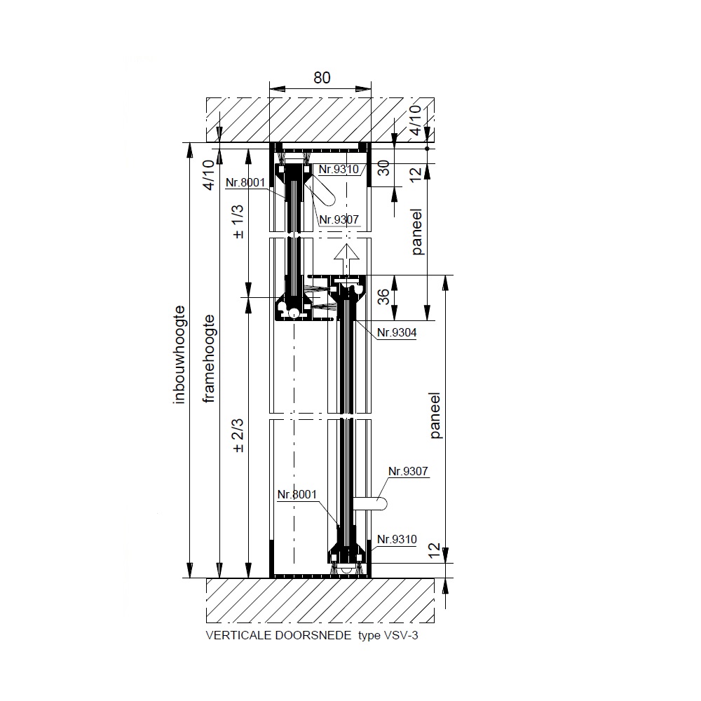
MetaPlus Comfort verticaal schuivend achterzetraam

Voorzien van:

  • 8 mm blank voorgespannen floatglas
  • raamprofiel nr. 8001 en nr. 9304
  • balansveren nr. 9301
  • glijblokken nr. 9311 en nr. 9321
  • kantelas nr. 9322 en nr. 9321
  • raamgeleidingen nr. 9313, nr. 9305 en nr. 9306
  • blokkeringsslot nr. 9332
  • blokkeringspen nr. 9314
  • handgreep nr. 9307
  • borstelprofielen
  • aluminium frame van profiel nr. 9300 en nr. 9310 rondom

Afbeeldingen zijn een voorbeeld van type VSV-3.

Download voor alle informatie de technische documentatie. Hierin vindt u onder andere: technische specificaties, technische detailtekeningen, samenstellingsoverzicht en aansluitdetails.

Heeft u na het inzien van de technische documentatie vragen en/of heeft u specifieke productwensen, neem dan contact op met Metaglas. Wij helpen u graag verder.